WhatsApp

Odbierz 5% rabatu na marki: AMITEK | EKA | ELOMA | GGF | HENDI | PRISMAFOOD | RESTO QUALITY | ROBOT COUPE | STALGAST przy zakupach od 300 PLN.

🎁 Wpisz w koszyku APR26 jeszcze przez  0000000

Wytyczne branżowe pod urzadzenia gastro M (50-150 m2)

Kod: Wytyczne M

Dostępność: w magazynie

Cena: 738.00

Cena: 738.00

WariantKolor/Wzór
szt.

Dostępność , płatność i dostawa

Wysyłka: 7 dni
Dostawa:
0
  • Odbiór osobisty 0
EAN:
5906236254086

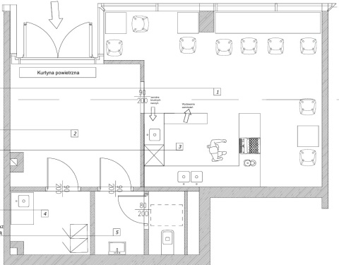
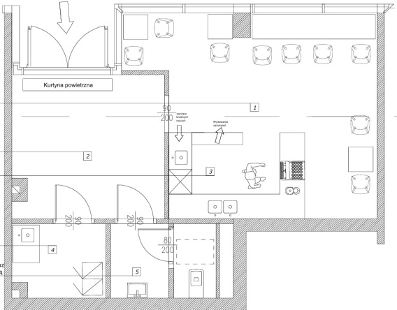
Wytyczne branżowe dla większych zapleczy, gdzie występuje więcej stanowisk i urządzeń, a liczba przyłączy rośnie. Dokument ułatwia koordynację prac instalacyjnych i ogranicza ryzyko kolizji.

Co zawiera

  • wytyczne elektryczne pod urządzenia (punkty przyłączeń zgodnie z ustalonym wyposażeniem)

  • wytyczne wodno kanalizacyjne pod urządzenia (punkty wody i odpływów zgodnie z ustalonym wyposażeniem)

  • uporządkowany materiał dla wykonawców instalacji

Wytyczne wykonujemy wyłącznie do projektów z naszej firmy.

Parametry:

Informacje dotyczące bezpieczeństwa

INSTRUKCJA BEZPIECZEŃSTWA - GASTRONOMIA

W celu zapewnienia bezpiecznego użytkowania urządzeń i akcesoriów gastronomicznych, należy przestrzegać poniższych zasad i ostrzeżeń. Dotyczą one wszystkich grup produktów wykorzystywanych w profesjonalnej kuchni.

Zagrożenia ogólne i środki ostrożności

Porażenie prądem: Upewnij się, że wszystkie urządzenia elektryczne są prawidłowo uziemione i regularnie sprawdzane. Unikaj kontaktu z wodą podczas użytkowania.

Oparzenia: Pracując z gorącymi powierzchniami, używaj rękawic ochronnych i zachowuj ostrożność. Monitoruj temperaturę pracy urządzeń.

Skaleczenia i zranienia: Korzystaj z właściwych narzędzi i technik pracy. Zawsze noś rękawice ochronne i uważaj na ostre krawędzie.

Zatrzaśnięcia i przygniecenia: Stosuj osłony i zabezpieczenia w urządzeniach z ruchomymi elementami. Szkol pracowników z zakresu bezpiecznej obsługi.

Pożar: Regularnie czyść urządzenia z tłuszczu i innych łatwopalnych substancji. Sprawdzaj stan instalacji elektrycznej.

Wycieki substancji: W przypadku wycieku smarów lub chemikaliów natychmiast oczyść miejsce i stosuj środki ochrony osobistej.

Uderzenia i upadki: Zabezpiecz przechowywane surowce oraz elementy maszyn. W razie potrzeby używaj kasku ochronnego.

Hałas: Stosuj ochronniki słuchu i przeprowadzaj badania słuchu personelu.

Ergonomia: Dostosuj stanowiska pracy do użytkownika. Zapewnij ergonomiczne szkolenie dla personelu.

Szkodliwe substancje: Unikaj wdychania oparów i pyłów. Zapewnij wentylację i używaj masek ochronnych.

Zalecenia szczegółowe według grup produktowych Urządzenia grzewcze

Ryzyko oparzeń i pożaru.

Nie zostawiaj urządzeń bez nadzoru podczas pracy.

Unikaj kontaktu z gorącymi powierzchniami.

Używaj wyłącznie zgodnie z przeznaczeniem.

Urządzenia chłodnicze

Przeznaczone do chłodzenia produktów spożywczych.

Regularnie serwisuj, aby uniknąć wycieków czynnika chłodniczego.

Zachowaj ostrożność – wilgoć może powodować poślizg.

Chemia gastronomiczna

Ryzyko poparzeń chemicznych i zatrucia oparami.

Nie spożywać. W razie kontaktu ze skórą lub oczami – przemyć wodą.

Używać zgodnie z instrukcją i przeznaczeniem.

Urządzenia mechaniczne

Ryzyko zranienia – szczególnie przy pracy z ostrymi elementami.

Nie wkładaj rąk do ruchomych części.

Stosuj ochronę słuchu przy głośnych urządzeniach.

Meble nierdzewne

Przeznaczone do kontaktu z żywnością.

Uważaj na ostre krawędzie w przypadku uszkodzeń.

Montaż zgodnie z instrukcją.

Urządzenia elektryczne

Ryzyko porażenia prądem i pożaru.

Podłączenie wyłącznie przez wykwalifikowany personel.

Unikać kontaktu z wodą i przeciążeń instalacji.

Urządzenia gazowe

Ryzyko wybuchu i pożaru.

Regularnie sprawdzaj szczelność instalacji gazowej.

Podłączaj wyłącznie przez uprawnione osoby.

Akcesoria gastronomiczne

Wszystkie produkty dopuszczone do kontaktu z żywnością.

Ryzyko zranienia przy ostrych narzędziach.

Uważaj na metalowe elementy pozostawione na gorących powierzchniach.

Dotyczy wszystkich produktów

Wszystkie produkty posiadają oznaczenie CE oraz spełniają europejskie normy bezpieczeństwa.

Używaj produktów wyłącznie zgodnie z ich przeznaczeniem.

Przed pierwszym użyciem zapoznaj się z instrukcją obsługi.

Regularne przeglądy i serwis znacząco zmniejszają ryzyko awarii.

W razie awarii natychmiast odłącz urządzenie od zasilania – nie naprawiaj samodzielnie.

Przechowuj urządzenia i akcesoria poza zasięgiem dzieci.

Dane bezpieczeństwa (GPSR)

Gastroprofit
Wincentego Danka 8, 31-229, 31-223 Kraków
31-223 Kraków
Poland

12 307 06 04
sklep@gastroprofit.pl

ZAPYTAJ